Planning & Architectural Services
Based in Northamptonshire, we prepare clear, practical designs and planning applications for extensions, alterations, conversions and new dwellings. We can assist from first feasibility sketches through to full drawing packages for planning and Building Regulation approval, helping you develop a scheme that fits the property, budget and local context, and managing the application process on your behalf.
Based in Northamptonshire, we prepare clear, practical designs and planning applications for extensions, alterations, conversions and new dwellings. From first ideas to full planning and Building Regulations drawings, we help you shape a scheme that fits the property, budget and local context, and handle the application process for you.
Established 2003
David Cosby Chartered Surveyors have over two decades of experience providing high quality Design and Planning Services.
Design Work Starts With a Good Set of Survey Drawings
The success of every architectural project lies in a comprehensive understanding of the existing site and building conditions. This is where our expertise in measured building surveys and topographical surveys is invaluable. At David Cosby, we recognise that an accurate set of as-existing survey drawings is not merely a preliminary step; it’s the cornerstone upon which all successful designs are constructed. Our in-house team of expert Land and Building Surveyors utilises the latest technology and methodologies to capture detailed and precise representations of buildings and sites. This meticulous approach ensures that every dimension, contour, and structural element is documented, laying a solid foundation for the design process.
Design Work Starts With a Good Set of Survey Drawings
The success of every architectural project lies in a comprehensive understanding of the existing site and building conditions. This is where our expertise in measured building surveys and topographical surveys is invaluable. At David Cosby, we recognise that an accurate set of as-existing survey drawings is not merely a preliminary step; it’s the cornerstone upon which all successful designs are constructed. Our in-house team of expert Land and Building Surveyors utilises the latest technology and methodologies to capture detailed and precise representations of buildings and sites. This meticulous approach ensures that every dimension, contour, and structural element is documented, laying a solid foundation for the design process.
Regulated by the Royal Institution of Chartered Surveyors (RICS)
Our Planning & Architectural Design services are conducted by qualified professionals who adhere to the strict standards and ethical guidelines set by the Royal Institution of Chartered Surveyors (RICS)
Communication
When it comes to delivering a successful project, communication is key. We work closely with our clients in developing a brief that meets design aspirations, site constraints, and budget. At David Cosby, we understand that every project is unique, and therefore, requires a tailored approach from the very outset. This begins with establishing a detailed client brief, a crucial step that allows us to fully grasp your vision, objectives, and the specific requirements of your project. Our dedicated team ensures that this brief becomes the guiding document throughout the design process, aligning every decision with your aspirations and the practical realities of your site.
Communication
When it comes to delivering a successful project, communication is key. We work closely with our clients in developing a brief that meets design aspirations, site constraints, and budget. At David Cosby, we understand that every project is unique, and therefore, requires a tailored approach from the very outset. This begins with establishing a detailed client brief, a crucial step that allows us to fully grasp your vision, objectives, and the specific requirements of your project. Our dedicated team ensures that this brief becomes the guiding document throughout the design process, aligning every decision with your aspirations and the practical realities of your site.
Scheme Designs
With client’s brief and site conditions as our blueprint, we begin to transform ideas into tangible designs. We utilise AutoCAD as our preferred drawing software to create scheme designs that bring your vision to life while carefully considering your budget and the site constraints. This stage is pivotal, as it marks the transition from abstract ideas to tangible plans. Our approach is collaborative, and we refine our sketches in close consultation with you, ensuring the evolving designs remain true to your vision.
Scheme Designs
With client’s brief and site conditions as our blueprint, we begin to transform ideas into tangible designs. We utilise AutoCAD as our preferred drawing software to create scheme designs that bring your vision to life while carefully considering your budget and the site constraints. This stage is pivotal, as it marks the transition from abstract ideas to tangible plans. Our approach is collaborative, and we refine our sketches in close consultation with you, ensuring the evolving designs remain true to your vision.
Planning Drawings & Application
Transitioning from initial concepts to formal planning stages is a critical step in bringing architectural projects to fruition. At David Cosby, we ensure our plans are tailored to meet both local planning policies and your specific project ambitions. Leveraging our knowledge of planning legislation and our expertise in architectural design, we craft applications designed to navigate the planning process with precision and strategic insight. Our team manages the entire application submission process, ensuring that it aligns with statutory requirements.
Planning Drawings & Application
Transitioning from initial concepts to formal planning stages is a critical step in bringing architectural projects to fruition. At David Cosby, we ensure our plans are tailored to meet both local planning policies and your specific project ambitions. Leveraging our knowledge of planning legislation and our expertise in architectural design, we craft applications designed to navigate the planning process with precision and strategic insight. Our team manages the entire application submission process, ensuring that it aligns with statutory requirements.
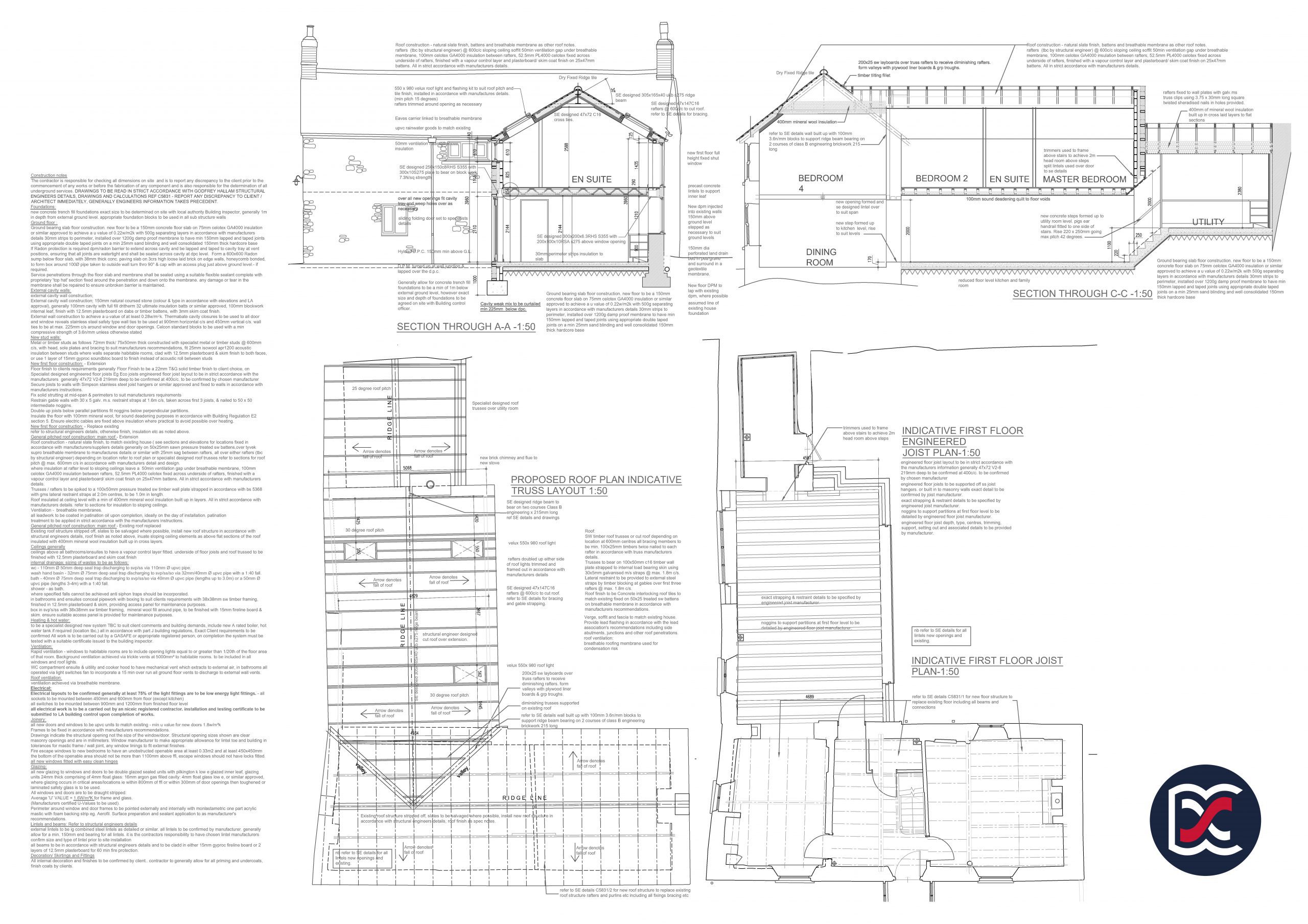
Detailed Working Drawings
The creation of detailed working drawings marks a pivotal phase in the architectural process. At David Cosby, our plans, elevations, sections, and construction notes, provide a clear and precise depiction of the project, encompassing all technical specifications and details required for compliance and execution. These drawings not only facilitate a smooth approval process with Building Control by demonstrating adherence to all relevant Building Regulations but also play a crucial role in the tendering process. By supplying contractors with detailed and unambiguous information, our working drawings ensure that all quotations are based on the same exacting standards and specifications, fostering competitive and comparable bids.
Detailed Working Drawings
The creation of detailed working drawings marks a pivotal phase in the architectural process. At David Cosby, our plans, elevations, sections, and construction notes, provide a clear and precise depiction of the project, encompassing all technical specifications and details required for compliance and execution. These drawings not only facilitate a smooth approval process with Building Control by demonstrating adherence to all relevant Building Regulations but also play a crucial role in the tendering process. By supplying contractors with detailed and unambiguous information, our working drawings ensure that all quotations are based on the same exacting standards and specifications, fostering competitive and comparable bids.
Recent Projects
Explore our portfolio of recent projects below. Each project highlights our ability to deliver tailored solutions that meet our clients’ unique needs, turning challenging sites into successfully completed projects.
Cottage Renovation and Extension | Pury End, Towcester
As a multi-disciplinary practice we were asked to initially provide a full Building Survey followed with Archictural Services to renovate and extend this period cottage in Pury End.
The extension was to take the form of a two-storey addition. At ground floor it would include a new kitchen, dining room and family room. At first floor the client requested a master bedroom with en-suite and a further single bedroom. A new utility room would be formed on the footprint of the existing outbuilding.
The project is now nearing completion and we very much look forward to posting photos of the finished article. It truly will be an idyllic family home in a beautiful location.
Residential Extension and Alterations including Orangery | Wallingford, Oxford
The owner of this Arts and Crafts inspired Edwardian house in Oxfordshire required internal structural alterations to rationalise the ground floor layout together with the construction of a large rear extension in the form of an Orangery with lantern roof.
Having to navigate Local Authority requirements for an archaeological dig on the site owing to historical interest of the local area we are pleased that the project is now complete and are delighted with the end results.
Industrial Units and Offices | Castlethorpe, Milton Keynes
For this interesting project our remit was to prepare a detailed working drawings package for a three phase development of industrial units and office accommodation in Castlethorpe, Milton Keynes.
Our comprehensive CAD drawings have enabled the successful application for Building Control Approval, have been utilised in the tendering process and are currently assisting as a Construction Guide on site.
The project is now into its second phase and we are enjoying seeing its progression.
Boat House | Northamptonshire
When we submit planning applications they are usually accompanied with a set of drawings; generally 2D plans and elevations. For most projects, this is a sufficient level of detail to assess the likely impact of the proposal. However, for more sensitive projects, a watercolour illustration can assist the planning officer to visualise the proposals and help them reach a more informed decision on whether to approve an application.
One such project that we were engaged on required planning drawings for a concealed boat house on a Northamptonshire lake. The boat house was to have a covered docking area and first-floor entertaining space. A glazed balcony would provide views over the lake and Northamptonshire countryside beyond. The boat house was to be set within a meadow which gently sloped down to the lake side. We were to incorporate a curved grassed roof to ensure that the boat house could not be visible from the roadside above.
Gymnasium, Cafeteria and Conference Centre | Blisworth Hill Farm Business Park
David Cosby were delighted to be instructed to assist with the planning and design of a new Gymnasium, Cafeteria and Conference Centre at the business park.
A large ornamental pond stocked with Carp is situated at the entrance to the business park. The proposals were to wrap the new building around the north side of this pond and to introduce a decked terrace area extending over the water. This would enable integration with this attractive element of the site and provide a pleasant area for staff at the Business Park to relax.
Our intention was to provide a sympathetic structure that assimilated with the surroundings and utilised vernacular building materials which would reflect the qualities of the existing buildings on the site. The roof was to extend partly over the terrace area, providing a covered seating area.
Q&A Guide to Planning & Building Regulations
What is the difference between Planning and Building Regulations?
Planning permission deals with what you can build and whether it is acceptable in terms of appearance, use, and impact on neighbours. Building Regulations govern how the work is constructed to ensure safety, structural stability, fire protection, drainage, and energy efficiency.
How long does the Planning process take?
Most applications take eight to twelve weeks for a decision, although complex or major proposals can take longer. Timescales depend on the Local Planning Authority’s workload and whether any amendments are required during the process.
Do I need Planning Permission for a home extension?
Many domestic extensions fall under Permitted Development, but only if they meet strict limits on size, height, and position. Anything outside these rules will require a full planning application.
How do you ensure compliance with Building Regulations?
We prepare detailed technical drawings, specifications, and supporting documents that meet the current Approved Documents. These are submitted to either the Local Authority or an Approved Inspector, who reviews and inspects the work during construction.
Do you need structural drawings / calculations for Planning Permission?
No. Planning usually only requires general layout and design drawings. Structural calculations are typically required later as part of the Building Regulations submission or by the contractor before work starts.
Can I draw my own plans for Building Regulations?
Yes, but Building Regulations drawings must meet specific technical requirements. In practice, most homeowners appoint a professional to ensure accuracy and avoid delays or failed submissions.
What buildings are exempt from Building Regulations?
Small detached buildings such as sheds, certain greenhouses, and some carports or porches may be exempt if they meet size and use criteria. Anything intended for overnight accommodation or that is close to a boundary usually requires approval.
What happens if you build without Building Regulations?
The local authority can issue enforcement action and may require the work to be opened up, altered, or removed. Non-compliant work can also cause issues on resale and may affect insurance.
Can I sell my house without a Building Regulations certificate?
You can begin some non-structural work, but anything involving foundations, structure, drainage, or fire safety requires approval beforehand. Starting too early risks enforcement and delays.
What happens if my neighbours object to Planning Permission?
Objections are considered by the Planning Officer, but only planning-related issues—such as privacy, overshadowing, or parking—carry weight. Neighbour objections do not automatically prevent approval.
Can you start building while waiting for Building Regulations?
In the UK, it is legally possible to start construction work before obtaining full Building Regulations approval, provided that you have submitted either a Full Plans application or a Building Notice to your local authority’s Building Control department. However, there are significant risks and considerations to be aware of:
-
Building Notice: By submitting a Building Notice, you are informing the local authority of your intent to commence work. This route does not require the submission of detailed plans, but it leaves you without the security of having had your plans checked and approved in advance. Work can start 48 hours after the Building Notice has been given to the local authority.
-
Full Plans Submission: If you choose the Full Plans submission route, you can technically start construction once you have submitted your plans and other documents to Building Control, but before approval has been granted. However, proceeding before approval means you take the risk that parts of your work may not comply and could need to be corrected, potentially at significant expense.
-
Risks and Considerations:
- Compliance Risk: Any work undertaken before approval is at your own risk. If the work does not comply with Building Regulations, you may be required to alter or remove it at your own expense.
- Financial Risk: There is a financial risk if you need to undo or redo work to meet compliance requirements.
- Safety Concerns: Starting construction without approval may lead to work that does not meet the safety standards outlined in the Building Regulations, potentially endangering future occupants or affecting the structural integrity of the building.
-
Insurance and Warranty: Some insurance providers or warranty schemes may require evidence of Building Regulations approval before offering coverage. Starting work without approval could affect your eligibility or lead to issues with insurance claims in the future.
Does my neighbour have a legal right to a view?
No. There is generally no legal right to a view in planning law. However, developments that cause unacceptable loss of light or privacy may still be refused.
Latest News and Projects
Edwardian Houses: A Surveyor’s Perspective
Edwardian houses represent, in my view, one of the finest periods of housebuilding in England. Combining solid construction with light, practical layouts, they continue to offer a rare balance of character and usability that remains highly sought after today.
Meet the Team – Andrew Spooner
Andrew Spooner FRICS is a Chartered Building Surveyor with over 50 years’ experience, specialising in Party Wall matters and defect diagnosis across residential and commercial property.
Ticking the Boxes
You are unlikely to tick every box when buying a home. The key is knowing which ones matter. From location and parking to future resale, this short guide helps you focus on what cannot be changed and make sensible, well-informed decisions.




















